■過去製作したシステムの図面集です、ご検討の参考にしてください。
記載された旧参考価格は、特注対応品のため参考価格(運送費別途)としてご覧下さい。 |
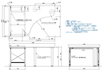
*図クリックで製作図面が見られます |
| A)L型デスク |
【すべて税込み価格表示】 |
|
|
|
|
|
|
|
 |
 |
 |
| 図面 No |
SOD-020722 |
| サイズ |
W1600×D900×H705 |
| 仕 様 |
MDF Type |
| 片面円形天板 |
|
| 図面 No |
SOD-030430 |
| サイズ |
W1600×D900×H705 |
| 仕 様 |
MDF Type |
| 片面円形天板etc |
|
| 図面 No |
idesk-020419 |
| サイズ |
W800×D800×H705 |
| 仕 様 |
COLOR Type |
| 円形天板 |
|
|
| |
|
|
|